|
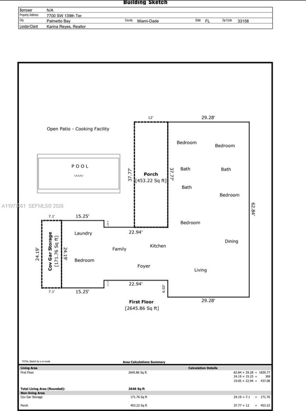
Located in North Palmetto Bay, just blocks from Pinecrest, this corner-lot residence sits on an expansive 26,000+ SF lot (two folios), offering exceptional space, privacy, and outdoor living. The home features 4 bedrooms plus a versatile room that can easily function as a 5th bedroom, home office, gym, or playroom, providing flexibility to suit a variety of lifestyles. The oversized, sprawling backyard creates a true outdoor oasis, ideal for entertaining. Enjoy a covered terrace and pergola perfect for year-round gatherings, while the paved circular driveway provides ample parking. Other features include a proper laundry room, barrel tile roof, partial impact windows/doors, and a partial garage/storage. Don't miss this rare opportunity to own in one of Palmetto Bay's most desirable pockets, prized for its proximity to top-rated public schools, parks, major roadways, and everyday conveniences. Actual sqft is 2646.
| DAYS ON MARKET | 1 | LAST UPDATED | 3/5/2026 |
|---|---|---|---|
| TRACT | ESTELLE LAWRENCE HOMES | YEAR BUILT | 1964 |
| COMMUNITY | 50 | GARAGE SPACES | 2.0 |
| COUNTY | Miami-Dade | STATUS | Active |
| PROPERTY TYPE(S) | Single Family |
| Elementary School | Howard Drive |
|---|---|
| Jr. High School | Palmetto |
| High School | Miami Palmetto |
| ADDITIONAL DETAILS | |
| AIR | Central Air |
|---|---|
| AIR CONDITIONING | Yes |
| APPLIANCES | Dishwasher, Electric Range, Microwave, Refrigerator |
| AREA | 50 |
| CONSTRUCTION | BLOCK |
| GARAGE | Yes |
| HEAT | CENTRAL |
| INTERIOR | Master Downstairs |
| LOT | 15143 acre(s) |
| LOT DIMENSIONS | 15143 |
| PARKING | Driveway |
| POOL DESCRIPTION | In Ground |
| SEWER | Septic Tank |
| STORIES | 1 |
| STYLE | Detached, OneStory |
| SUBDIVISION | ESTELLE LAWRENCE HOMES |
| TAXES | 13838 |
| VIEW | Yes |
| VIEW DESCRIPTION | Pool |
| WATER | Public |
| ZONING | 2100 |
MORTGAGE CALCULATOR
TOTAL MONTHLY PAYMENT
0
P
I
*Estimate only
| SATELLITE VIEW |
| / | |
We respect your online privacy and will never spam you. By submitting this form with your telephone number
you are consenting for Arian
Adorno to contact you even if your name is on a Federal or State
"Do not call List".
Listed with Compass Florida, LLC
The data relating to real estate for sale on this web site comes in part from the Miami Association of Realtors Regional MLS and is provided here for consumers personal, non-commercial use, It may not be used for any purpose other than to identify prospective properties consumers may be interested in purchasing. Real Estate listings held by brokerage firms other than the office owning this web site are marked. Data provided is deemed reliable but not guaranteed.
This IDX solution is (c) Diverse Solutions 2026.
