|
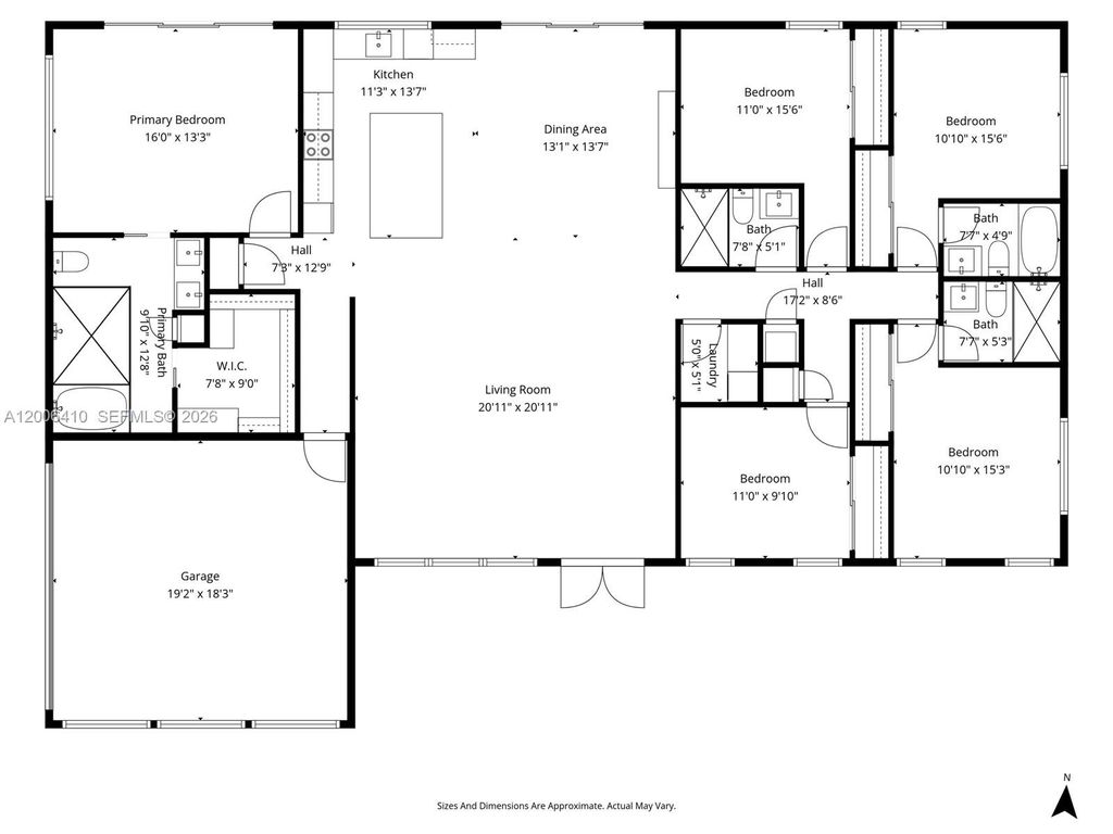
Casa Pinewood - A New Construction Masterpiece in the Heart of Palmetto Bay. This stunning 5 Bed, 4 Bath Home with Pool and 2 Car Garage offers the perfect blend of modern design, warmth, and functionality. Step inside to soaring ceilings, wide-plank wood flooring, and an open-concept layout designed for both everyday living and effortless entertaining. The sleek chef's kitchen features custom cabinetry, premium finishes, High End Appliances and a massive waterfall island that flows seamlessly into expansive Living and Dining areas overlooking your private Outdoor Oasis. The Split floor plan offers generous bedroom sizes, including a Luxurious Primary Suite with Dual Sinks, Walk In Closet and Serene views of the Outdoors. Designed with a clean, contemporary aesthetic and high-end finishes throughout, this home delivers a True Move-In Ready experience. Almost 16k SF of outdoor space to design and create the backyard of your dreams. Palmetto Bay is known for its lush greenery, family-friendly atmosphere, and strong sense of community. Often referred to as the "Village of Parks," the area offers abundant green spaces, top-rated schools, and a lifestyle centered around outdoor living and wellness. Residents enjoy spacious homes, quiet streets, and convenient access to the best of Miami while maintaining a peaceful residential setting. Casa Pinewood is a rare opportunity to own a brand-new home in a highly sought-after neighborhood where modern luxury meets timeless Miami living.
| DAYS ON MARKET | 1 | LAST UPDATED | 4/23/2026 |
|---|---|---|---|
| TRACT | PINEWOOD ESTATES FIRST AD | YEAR BUILT | 2025 |
| COMMUNITY | 50 | GARAGE SPACES | 2.0 |
| COUNTY | Miami-Dade | STATUS | Active |
| PROPERTY TYPE(S) | Single Family |
| Jr. High School | Southwood |
|---|---|
| High School | Miami Palmetto |
| ADDITIONAL DETAILS | |
| AIR | Central Air |
|---|---|
| AIR CONDITIONING | Yes |
| APPLIANCES | Dishwasher, Disposal, Dryer, Electric Range, Ice Maker, Microwave, Refrigerator, Self Cleaning Oven, Washer, Wine Cooler |
| AREA | 50 |
| CONSTRUCTION | BLOCK |
| GARAGE | Attached Garage, Yes |
| HEAT | CENTRAL |
| INTERIOR | Built-in Features, Master Downstairs, Pantry, Walk-In Closet(s) |
| LOT | 15600 acre(s) |
| LOT DIMENSIONS | 15600 |
| PARKING | Attached, Covered, Driveway, Garage, RV Access/Parking, Garage Door Opener |
| POOL DESCRIPTION | In Ground |
| SEWER | Septic Tank |
| STORIES | Split/Multi Level |
| STYLE | OneStory, SplitLevel |
| SUBDIVISION | PINEWOOD ESTATES FIRST AD |
| TAXES | 8310 |
| VIEW | Yes |
| VIEW DESCRIPTION | Garden |
| WATER | Public |
| ZONING | 2100 |
MORTGAGE CALCULATOR
TOTAL MONTHLY PAYMENT
0
P
I
*Estimate only
| SATELLITE VIEW |
| / | |
We respect your online privacy and will never spam you. By submitting this form with your telephone number
you are consenting for Arian
Adorno to contact you even if your name is on a Federal or State
"Do not call List".
Listed with Douglas Elliman
The data relating to real estate for sale on this web site comes in part from the Miami Association of Realtors Regional MLS and is provided here for consumers personal, non-commercial use, It may not be used for any purpose other than to identify prospective properties consumers may be interested in purchasing. Real Estate listings held by brokerage firms other than the office owning this web site are marked. Data provided is deemed reliable but not guaranteed.
This IDX solution is (c) Diverse Solutions 2026.
