|
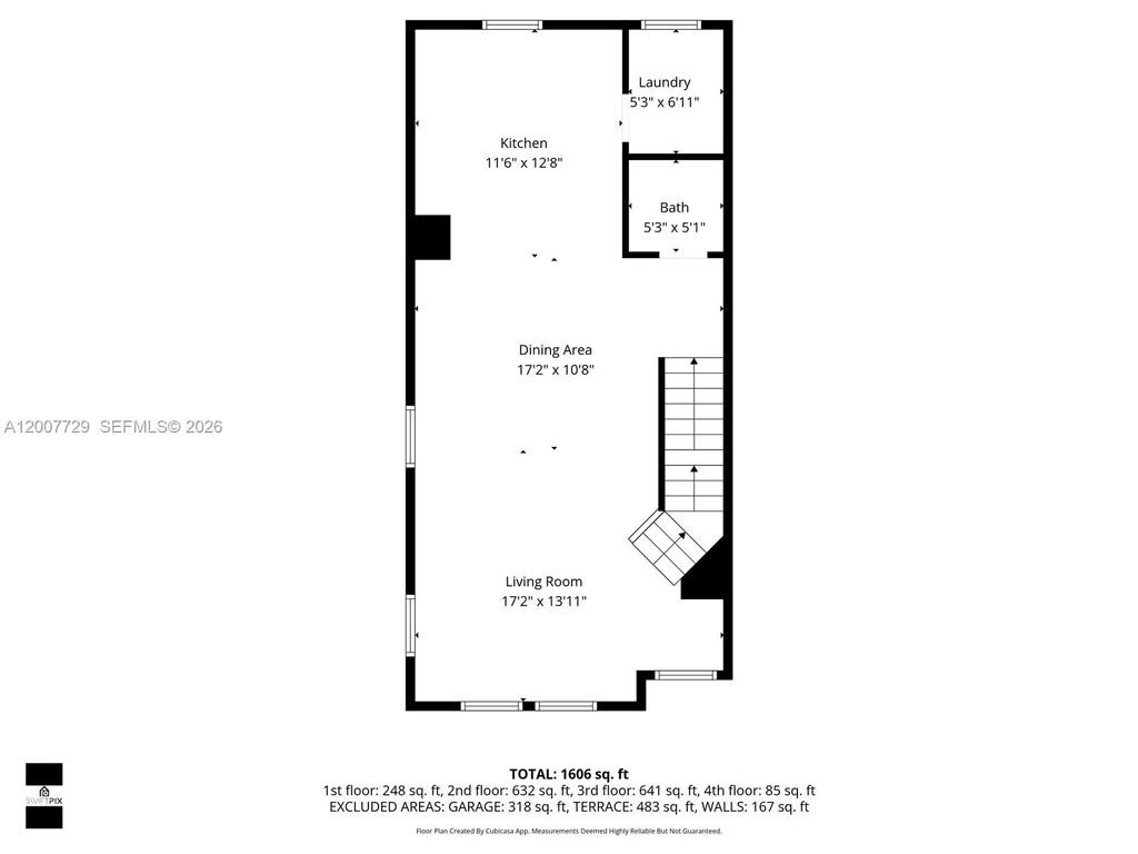
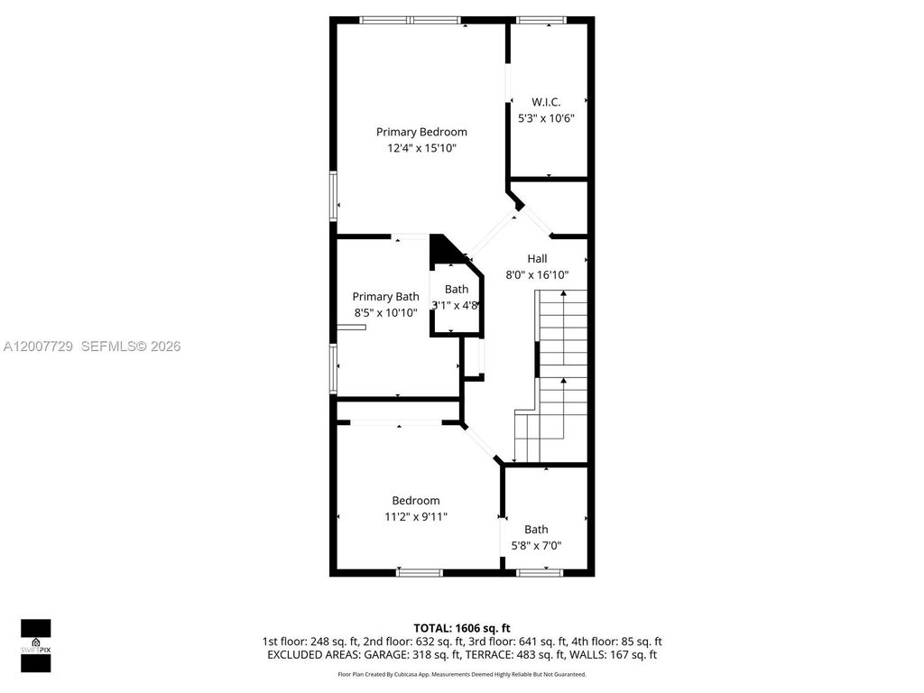
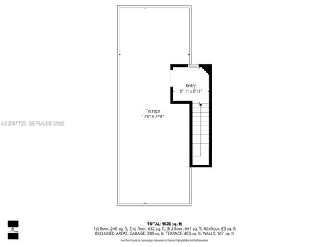
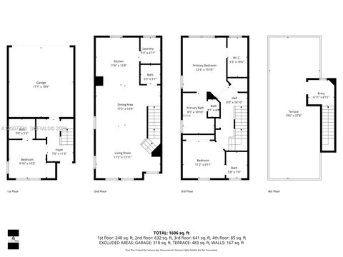
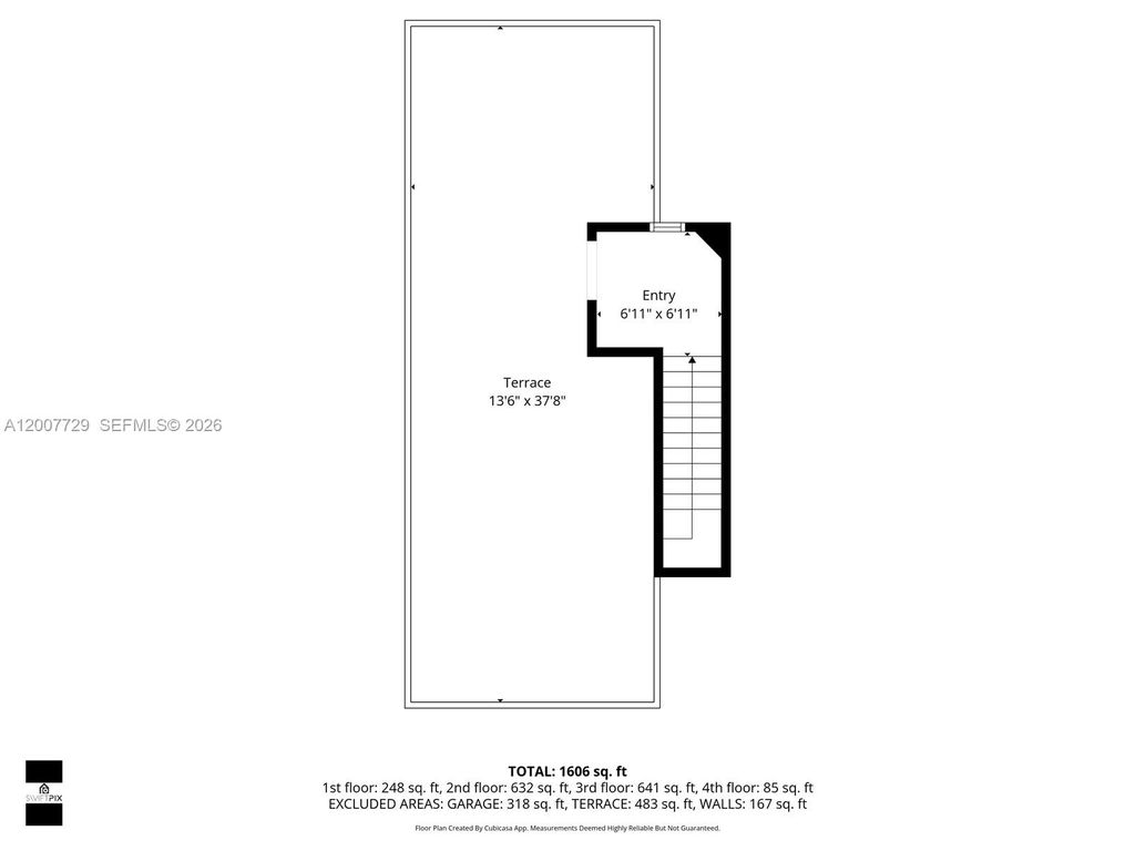
Magnificent 4-level Mediterranean-style townhouse with a large and private rooftop terrace in one of East Fort Lauderdale's most sought-after gated communities. This southwest corner unit has lots of natural light pouring in from two directions, high ceilings, crown molding, and this unit walks out to the pool. 3 bedrooms, 3.5 baths, two-car attached garage, in unit laundry room "” plus every bedroom has its own ensuite... primary suite has roman tub and separate shower. Wood and tile floors throughout, granite countertops, hurricane impact windows, fresh paint, and in-unit laundry. Clean, updated, and move-in ready! Only 1.5 miles to Fort Lauderdale Beach, and Las Olas. Trader Joe's, Whole Foods, The Fresh Market, and Nordstrom all walkable. Holiday Park right around the corner, with endless dining, shopping, and entertainment in every direction. New roof 2024. The rooftop terrace overlooks the pool with downtown Fort Lauderdale views in the distance "” day or night, it's a scene that doesn't get old. This is a well-positioned unit in a well-run community, and the location simply can't be beat.
| DAYS ON MARKET | 1 | LAST UPDATED | 4/25/2026 |
|---|---|---|---|
| TRACT | VILLA MEDICI CONDO | YEAR BUILT | 2006 |
| COMMUNITY | 3380 | GARAGE SPACES | 2.0 |
| COUNTY | Broward | STATUS | Active |
| PROPERTY TYPE(S) | Condo/Townhouse/Co-Op |
| Elementary School | Bennett |
|---|---|
| Jr. High School | Sunrise |
| High School | Fort Lauderdale |
| ADDITIONAL DETAILS | |
| AIR | Ceiling Fan(s), Central Air |
|---|---|
| AIR CONDITIONING | Yes |
| AMENITIES | Insurance, Maintenance Grounds, Maintenance Structure, Trash |
| APPLIANCES | Dishwasher, Disposal, Dryer, Electric Range, Electric Water Heater, Microwave, Refrigerator, Washer |
| AREA | 3380 |
| CONSTRUCTION | BLOCK |
| EXTERIOR | Awning(s), Balcony |
| GARAGE | Attached Garage, Yes |
| HEAT | CENTRAL |
| HOA DUES | 728 |
| INTERIOR | Breakfast Bar, Built-in Features, Entrance Foyer, Master Downstairs, Walk-In Closet(s) |
| LOT | 0 |
| PARKING | Attached, Garage, Guest, Other |
| POOL DESCRIPTION | Association |
| STORIES | Three Or More, Multi/Split |
| STYLE | Other, TriLevel |
| SUBDIVISION | VILLA MEDICI CONDO |
| TAXES | 10413 |
| UTILITIES | Cable Available |
| VIEW | Yes |
| VIEW DESCRIPTION | City, Garden, Pool |
MORTGAGE CALCULATOR
TOTAL MONTHLY PAYMENT
0
P
I
*Estimate only
| SATELLITE VIEW |
| / | |
We respect your online privacy and will never spam you. By submitting this form with your telephone number
you are consenting for Arian
Adorno to contact you even if your name is on a Federal or State
"Do not call List".
Listed with Compass Florida, LLC
The data relating to real estate for sale on this web site comes in part from the Miami Association of Realtors Regional MLS and is provided here for consumers personal, non-commercial use, It may not be used for any purpose other than to identify prospective properties consumers may be interested in purchasing. Real Estate listings held by brokerage firms other than the office owning this web site are marked. Data provided is deemed reliable but not guaranteed.
This IDX solution is (c) Diverse Solutions 2026.
