|
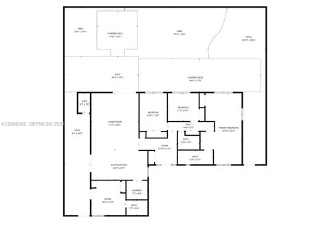
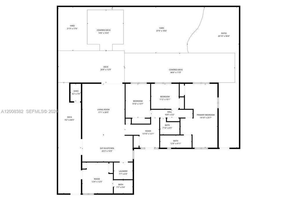
Fully updated and thoughtfully designed, this Cutler Bay home is built for the way people live today. Bright interiors, clean modern finishes, and a functional layout make this 3BD/2BA residence feel comfortable and move-in ready from day one. A separate-entry space with its own bedroom and bath adds incredible flexibility"”perfect for extended family, guests, or a private work-from-home setup. Design-forward details shine throughout, including a sleek in-wall fireplace, custom board and batten accent walls, and curated finishes that create a warm, elevated feel. With a new roof, impact windows, water filtration system, and a backyard made for easy entertaining, this home delivers style, versatility, and long-term value in one of Cutler Bay's most desirable neighborhoods.
| DAYS ON MARKET | 1 | LAST UPDATED | 4/27/2026 |
|---|---|---|---|
| TRACT | BEL AIRE SEC 3 | YEAR BUILT | 1966 |
| COMMUNITY | 60 | COUNTY | Miami-Dade |
| STATUS | Active | PROPERTY TYPE(S) | Single Family |
| Elementary School | Cutler Ridge |
|---|
| ADDITIONAL DETAILS | |
| AIR | Ceiling Fan(s), Central Air |
|---|---|
| AIR CONDITIONING | Yes |
| APPLIANCES | Dryer, Electric Range, FREEZER, Microwave, Refrigerator, Self Cleaning Oven, Washer, Water Softener Owned, Wine Cooler |
| AREA | 60 |
| CONSTRUCTION | BLOCK, Stucco |
| FIREPLACE | Yes |
| HEAT | CENTRAL |
| INTERIOR | Eat-in Kitchen, Master Downstairs, Pantry |
| LOT | 7875 acre(s) |
| LOT DIMENSIONS | 7875 |
| PARKING | Circular Driveway |
| POOL DESCRIPTION | None |
| SEWER | Public Sewer |
| STORIES | 1 |
| STYLE | OneStory |
| SUBDIVISION | BEL AIRE SEC 3 |
| TAXES | 4421 |
| VIEW | Yes |
| VIEW DESCRIPTION | Garden |
| WATER | Public |
| ZONING | 0100 |
MORTGAGE CALCULATOR
TOTAL MONTHLY PAYMENT
0
P
I
*Estimate only
| SATELLITE VIEW |
| / | |
We respect your online privacy and will never spam you. By submitting this form with your telephone number
you are consenting for Arian
Adorno to contact you even if your name is on a Federal or State
"Do not call List".
Listed with The Keyes Company
The data relating to real estate for sale on this web site comes in part from the Miami Association of Realtors Regional MLS and is provided here for consumers personal, non-commercial use, It may not be used for any purpose other than to identify prospective properties consumers may be interested in purchasing. Real Estate listings held by brokerage firms other than the office owning this web site are marked. Data provided is deemed reliable but not guaranteed.
This IDX solution is (c) Diverse Solutions 2026.
